HRC...N
Charts

For a larger view, please mouseover the image.
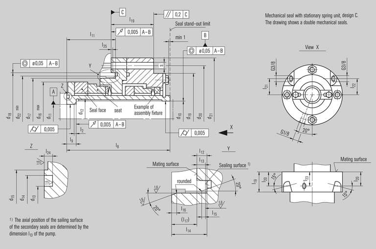
Mechanical seal with stationary spring unit, design C. The drawing shows a double mechanical seal.