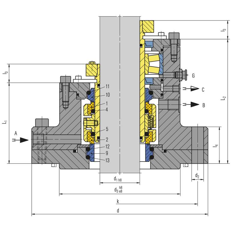
Item no. Description
1 Seal face, atmosphere side
2 Seal face, product side
4, 5, 11, 12, 13 O-Ring
9 Seat, product side
10 Seat, atmosphere side

HS-D

Features

  • For top entry drives
  • Double seal
  • Unbalanced
  • Independent of direction of rotation
  • Multiple springs rotating
  • Liquid-lubricated
  • Cartridge unit

Advantages

  • Ready-to-fit and factory-tested unit
  • With or without bearing available
  • Patented hydrodynamic grooves
  • Designed for medium pressure range
  • Connection dimensions to customers' requirements
  • Self-closing on product side
  • ATEX certification on request

Operating range

Shaft diameter:
d1 = 20 ... 500 mm (0.79" ... 19.69")
Pressure: p1 = vacuum ... 30 bar (... 435 PSI)
Temperature:
t1 = -40 °C ... +200 (350*) °C
(-40 °F ... +392 (662*)) °F
Sliding velocity:
vg = 0 ... 5 m/s (0 ... 16 ft/s)

* with cooling flange

For applications beyond this range, please inquire.

! It should be noted that the extremal values of each operating parameter cannot be applied at the same time because of their interaction.

Materials

Seal faces: Carbon graphite or Silicon carbide, FDA conform
Seats: Silicon carbide, FDA conform
Secondary seals and metallic parts acc. to application and customers' requirement.

Standards and approvals

  • FDA

Notes

Options:
  • Cooling resp. heating flange
  • Leakage drain
  • Flush
  • Polymerization barrier

Recommended piping plans

Open circuit
e.g. EagleBurgmann SPA, EagleBurgmann SPN

Product links:
EagleBurgmann SPA
EagleBurgmann SPN manual
EagleBurgmann SPN automatic



Product variants

HS … -D
Double seal

HS .. L-D
Double seal with integrated floating bearing.

HS ..(L)U-D
Double seal for bottom and side entry drives with or without floating bearing.

These seals are designed to be self-closing on the product side, i.e. they will remain closed even with pressure variations or a pressure reversal.

Similar products

ERB

  • Cartridge unit
  • Double seal with integrated bearing
  • Unbalanced
  • Independent of direction of rotation

HSH(L)U-D

  • For bottom entry drives
  • Double seal
  • Balanced
  • Independent of direction of rotation
  • Multiple springs rotating
  • Liquid-lubricated
  • Cartridge unit

HSH-D

  • For top entry drives
  • Double seal
  • Balanced
  • Independent of direction of rotation
  • Multiple springs rotating
  • Liquid-lubricated
  • Cartridge unit
Contact

Inquire about individual solutions

We develop and produce customer-specific special and individual solutions for every application.

Inquire now Discover reference projects
Back to the overview