SeccoMix 461
Installation, details, options

For a larger view, please mouseover the image.
Supply connections
Designation and positions acc. to DIN 28138 T3.

A Barrier gas IN
B Barrier gas OUT
C Drainage
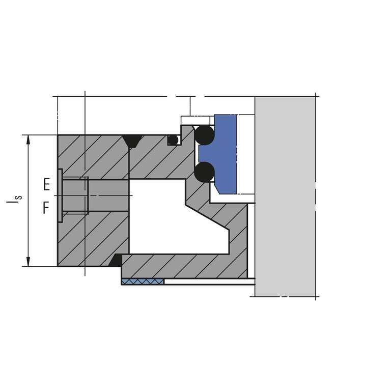
E Cooling IN
F Cooling OUT
G Grease
S Flush
T Temperature metering
For a larger view, please mouseover the image.
Cooling flange
Can be used alternatively as a heating flange.